
站在大门外,往内拍。

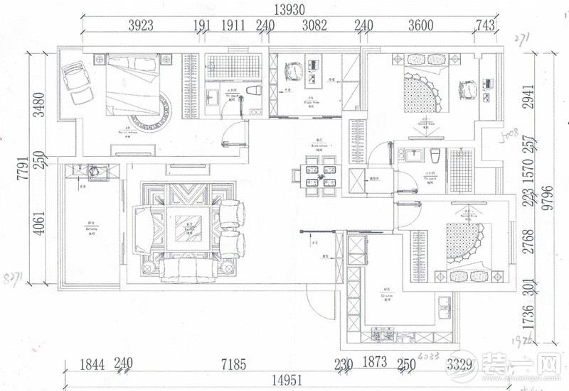
站在门口拍的,对面是西侧阳台,以后要改书房兼储藏功能。这户型是典型的穿堂煞型,入户门正对阳台,窗户。不易聚财的户型,所以这阳台门拆了一定要封墙。我原本想着,西边户,夏天的时候本想靠着这西边的大通透,来个快速降温的。后来听设计师讲的。封掉它。左侧门是主卧。
门口往南拍,客厅,大阳台。右边门是主卧。
大阳台
可惜大阳台的东侧被人家墙挡住了。
大阳台往里看,右侧是入户门,正对面是客卧。
站客厅拍的,移门是西边阳台。
主卧门口往里看,下方黑门是主卫。
主卧,带飘窗。
西阳台,将来改书房的。
主卧门口往外看,右侧入户门,左侧门内的门是厨房,这个门要改掉,改到入户门旁边,改成移门。
房子正中间往北看,对面客卧,下面门是厨房。
厨房内部。
厨房带一生活阳台,将来打掉,统统做厨房。
生活小阳台
厨房往外拍,门依次为,客卧、外卫、儿童房。
客卧
外卫,由于是二手房,之前住过人,所以就成这样了。
儿童房。也带飘窗的。
好了带大家参观完了我的房子。有什么建议,也欢迎大家多多指点。
没有拍小区环境及周边情况,下次补上。对了现在的房子不是在我超喜欢的小区里面。事情总是这样,没法十全十美的。